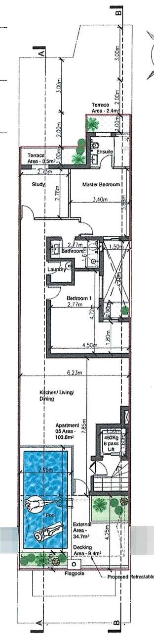
In a newly built block of 8 units, comes this 3 bedroom penthouse with airspace.
The property consists of an open plan kitchen/ living/ dining with access to a front terrace. A corridor leads to a bedroom, main bathroom, main bedroom with ensuite, and another bedroom with a terrace at the back. The corridor also leads to a small balcony which is a very good source of light for the property.
Property is being sold finished excluding bathrooms and doors.
Freehold.
Optional 1, 2 and 3 car garages available at basement level.
Disclaimer: The information displayed about this property comprises a property advertisement. PropertyPortfolio.com.mt makes no warranty as to the accuracy or completeness of the advertisement or any linked or associated information. Please verify all details directly with the listing agent.
This calculator is provided for illustration purposes only, and is subject to our Disclaimer Policy.
Eligibility Details
Your Estimate
Figures shown are estimates based on general assumptions and do not represent a loan offer or commitment from any bank.
Actual eligibility, rates, and repayments depend on your individual financial situation and the terms set by lenders.
Please contact a licensed bank or home loan advisor for personalised assistance.

















