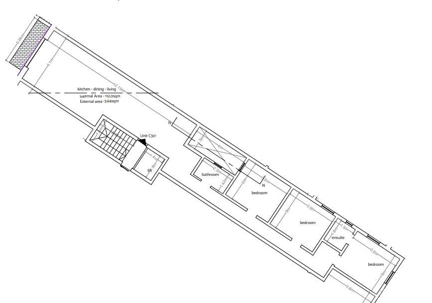
Opportunity to own a spacious apartment in the heart of Qormi is now available in shell form, offering the opportunity to customize your dream home. The property features a bright open-plan kitchen/dining/living, two well sized bedrooms, a main bathroom, a terrace and a front balcony. This property is still on plan and will be offered in shell form. Optional garages are available at an extra price.
Disclaimer: The information displayed about this property comprises a property advertisement. PropertyPortfolio.com.mt makes no warranty as to the accuracy or completeness of the advertisement or any linked or associated information. Please verify all details directly with the listing agent.
This calculator is provided for illustration purposes only, and is subject to our Disclaimer Policy.
Eligibility Details
Your Estimate
Figures shown are estimates based on general assumptions and do not represent a loan offer or commitment from any bank.
Actual eligibility, rates, and repayments depend on your individual financial situation and the terms set by lenders.
Please contact a licensed bank or home loan advisor for personalised assistance.




