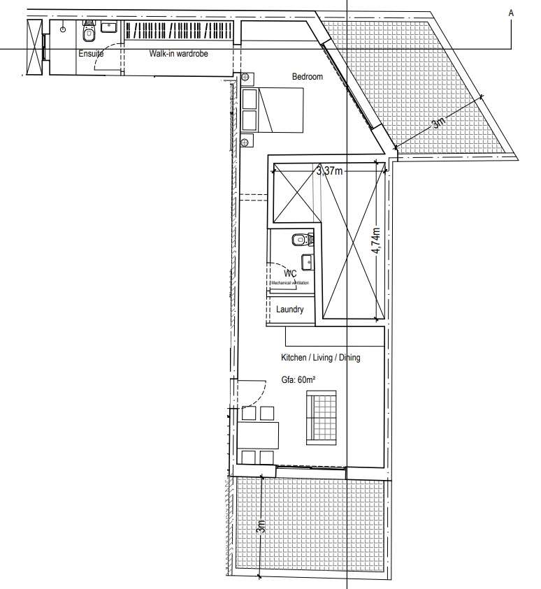
Located in a new block in Qormi comes this three-bedroom penthouse currently on plan.
Consists of an open plan kitchen/dining/living complemented by a terrace, main bathroom, three double bedrooms with the master having a private terrace.
This penthouse is being offered in advanced shell form.
Construction already started and is estimate to be completed by 2026.
Disclaimer: The information displayed about this property comprises a property advertisement. PropertyPortfolio.com.mt makes no warranty as to the accuracy or completeness of the advertisement or any linked or associated information. Please verify all details directly with the listing agent.
This calculator is provided for illustration purposes only, and is subject to our Disclaimer Policy.
Eligibility Details
Your Estimate
Figures shown are estimates based on general assumptions and do not represent a loan offer or commitment from any bank.
Actual eligibility, rates, and repayments depend on your individual financial situation and the terms set by lenders.
Please contact a licensed bank or home loan advisor for personalised assistance.




