If you are are looking for true home feeling , comfortable living space, and large internal yard and back yard – this property is a must to see !!
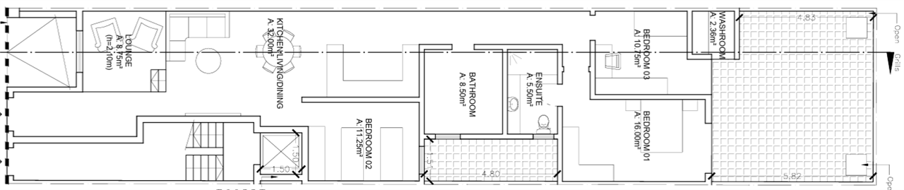
Located on an elevated floor comes this large three-bedroom finished maisonette.
The layout comprises of an open plan kitchen/dining/living upon entrance, a large main bathroom, a washroom which is interconnected with the back yard , a large internal yard, three bedrooms and a backyard.
The master bedroom includes an ensuite and is connected to the backyard, the second bedroom which is a spare bedroom is also connected to the back yard and the third bedroom is a double bedroom.
This property is ready built and is being offered finished excluding bathrooms and internal doors.
Optional garages are also available , starting from 98k
Freehold.
Disclaimer: The information displayed about this property comprises a property advertisement. PropertyPortfolio.com.mt makes no warranty as to the accuracy or completeness of the advertisement or any linked or associated information. Please verify all details directly with the listing agent.
This calculator is provided for illustration purposes only, and is subject to our Disclaimer Policy.
Eligibility Details
Your Estimate
Figures shown are estimates based on general assumptions and do not represent a loan offer or commitment from any bank.
Actual eligibility, rates, and repayments depend on your individual financial situation and the terms set by lenders.
Please contact a licensed bank or home loan advisor for personalised assistance.












