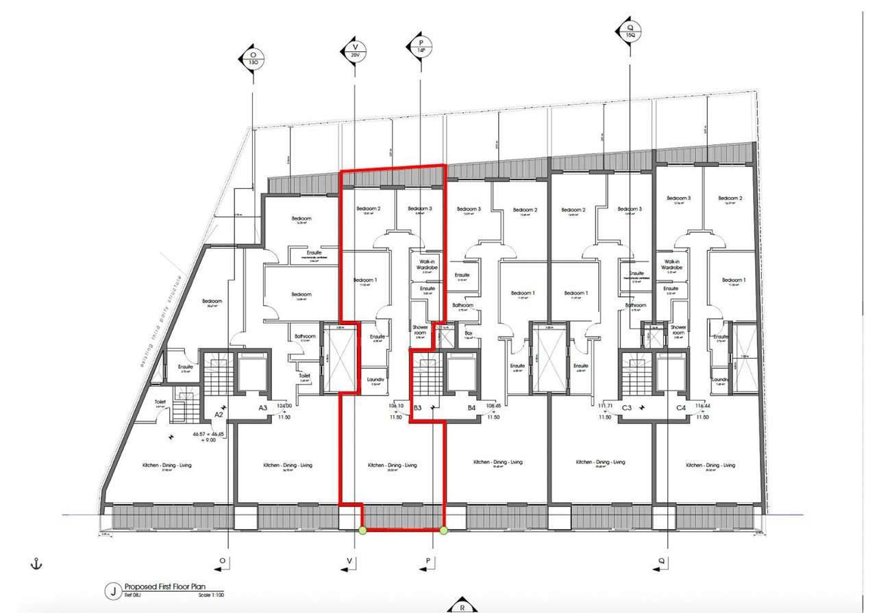
In Birkirkara comes three-bedroom, First floor apartment, currently under construction.
This apartment consists of an open plan kitchen/dining/living with a front balcony, laundry room, shower room and three double bedrooms, master bedroom includes a balcony a walk-in-wardrobe and an ensuite bathroom, second bedroom also includes an ensuite bathroom.
This apartment is being offered highly finished excluding bathroom and internal doors, estimated to be completed by June 2026.
Disclaimer: The information displayed about this property comprises a property advertisement. PropertyPortfolio.com.mt makes no warranty as to the accuracy or completeness of the advertisement or any linked or associated information. Please verify all details directly with the listing agent.
This calculator is provided for illustration purposes only, and is subject to our Disclaimer Policy.
Eligibility Details
Your Estimate
Figures shown are estimates based on general assumptions and do not represent a loan offer or commitment from any bank.
Actual eligibility, rates, and repayments depend on your individual financial situation and the terms set by lenders.
Please contact a licensed bank or home loan advisor for personalised assistance.





