In Naxxar (Birguma area) comes this high-end luxury project including this 3-double-bedroom maisonette with a main bathroom, an ensuite in the master bedroom, a laundry/boxroom, a large kitchen/living/dining, and a paid-up permit for a spa at the back garden, having a total area of 183-square-metre.
This property is going to be sold semi – finished excluding bathrooms and doors. The garages, maisonette, apartments, penthouse and common area are going to be sold highly finished.
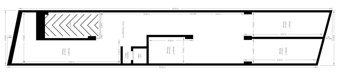
Optional three 1-car garages and a 2-car garage to choose from starting from 1 car 56,000 Euro and 2 car 76,000 Euro.
The project is currently in its construction and finishing phase and is estimated to be finished by 31st December 2024.
Disclaimer: The information displayed about this property comprises a property advertisement. PropertyPortfolio.com.mt makes no warranty as to the accuracy or completeness of the advertisement or any linked or associated information. Please verify all details directly with the listing agent.

PPMT1374583