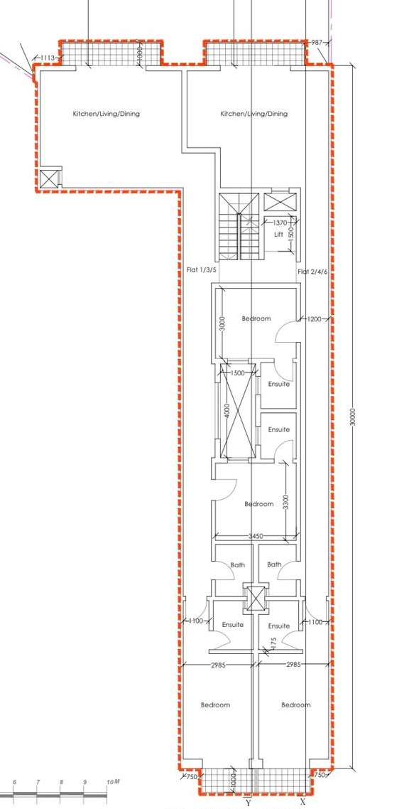
Currently block is under construction – In the quiet village of Safi comes the opportunity to acquire a two-bedroom second floor Apartment being offered Finished excluding bathrooms and internal doors.
Upon entering one finds a kitchen/living/dining/balcony, Master Bedroom (with en-suite), Bathroom, second Bedroom with a balcony.
All common areas and lift will be of the highest standards.
Project is estimated to be ready in shell form by end of year 2026 and Finished by mid 2027.
Freehold
Disclaimer: The information displayed about this property comprises a property advertisement. PropertyPortfolio.com.mt makes no warranty as to the accuracy or completeness of the advertisement or any linked or associated information. Please verify all details directly with the listing agent.

PPMT1374679