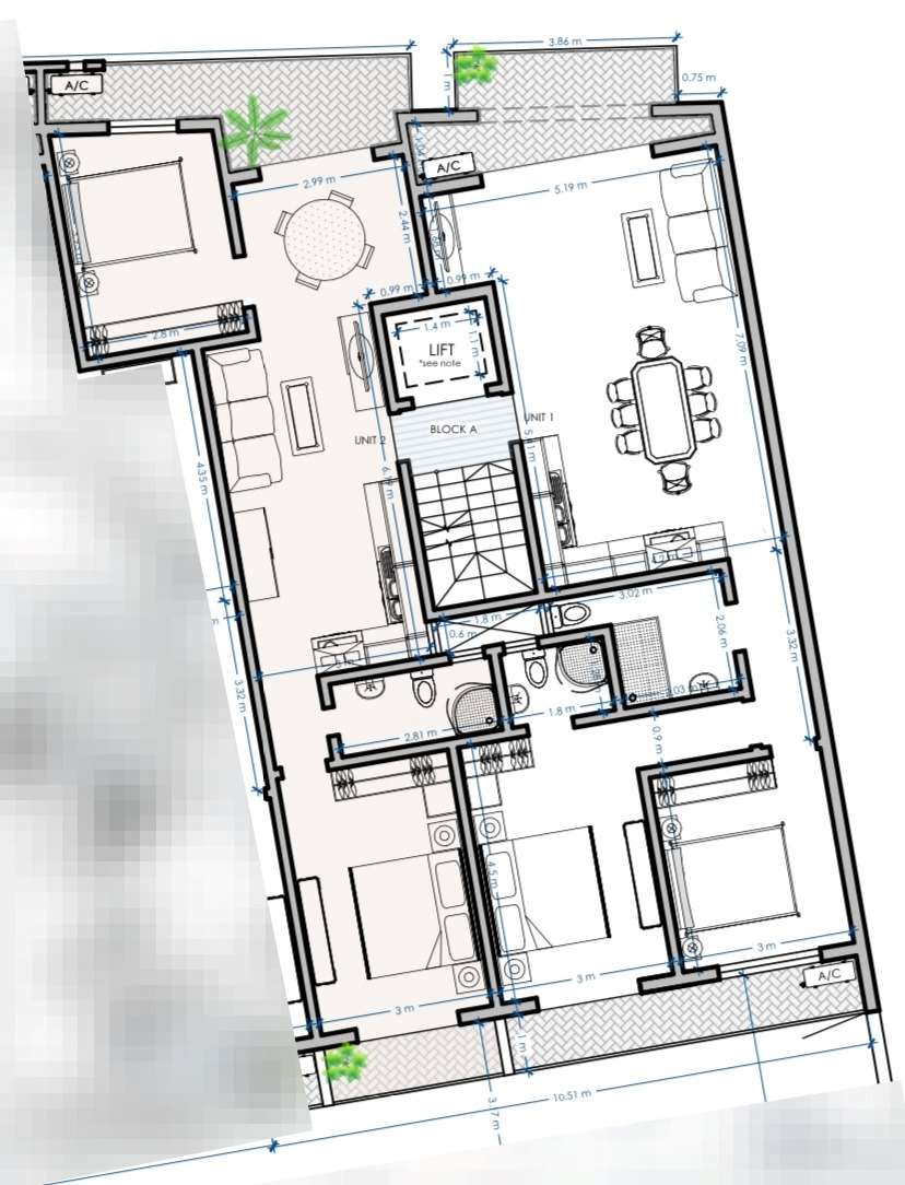
In the outskirts of San Pawl il-Bahar comes this Apartment set on the 5th floor served with lift in a New Development which is currently under construction and will be finished in shell by September 2025.
Layout compromises of an Open Plan Kitchen/Living/Dining with a front terrace, first single bedroom, main bathroom, while at the back one finds the other 2 bedrooms were the main bedroom enjoys an ensuite and back a balcony.
This Apartment is being Sold in Shell with Common Parts Ready. Optional Garage Available at an extra cost
Freehold.
Disclaimer: The information displayed about this property comprises a property advertisement. PropertyPortfolio.com.mt makes no warranty as to the accuracy or completeness of the advertisement or any linked or associated information. Please verify all details directly with the listing agent.
This calculator is provided for illustration purposes only, and is subject to our Disclaimer Policy.
Eligibility Details
Your Estimate
Figures shown are estimates based on general assumptions and do not represent a loan offer or commitment from any bank.
Actual eligibility, rates, and repayments depend on your individual financial situation and the terms set by lenders.
Please contact a licensed bank or home loan advisor for personalised assistance.





