New development in the heart of Swieqi is currently under construction.
This project consists of 3 blocks, each having 2 maisonettes at the elevated ground floor, 6 apartments, and 2 penthouses.
All units are being offered fully finished, including bathrooms and internal doors. Also, optional garages starting from 52k.
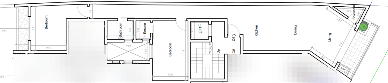
This 3rd floor apartment consists of a front private terrace, a front open plan, 2 double bedrooms, of which the main bedroom is also served with ensuit, a box room , a master bathroom.
Freehold.
Disclaimer: The information displayed about this property comprises a property advertisement. PropertyPortfolio.com.mt makes no warranty as to the accuracy or completeness of the advertisement or any linked or associated information. Please verify all details directly with the listing agent.

PPMT1375251