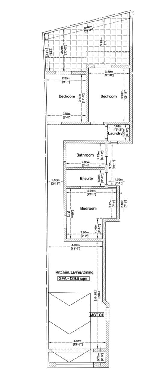
Located in Uca area this semi finished 3 bedroom maisonette, already built.
It consists K/L/D (Open plan) over looking front large window, Master bedroom with en-suite), Main bathroom. laundry room, 2 bedrooms and backyard. Situated in a quiet location and in Uca area (notax). Completion date December 2025.
Optional garages at an extra cost.
Freehold
Disclaimer: The information displayed about this property comprises a property advertisement. PropertyPortfolio.com.mt makes no warranty as to the accuracy or completeness of the advertisement or any linked or associated information. Please verify all details directly with the listing agent.
This calculator is provided for illustration purposes only, and is subject to our Disclaimer Policy.
Eligibility Details
Your Estimate
Figures shown are estimates based on general assumptions and do not represent a loan offer or commitment from any bank.
Actual eligibility, rates, and repayments depend on your individual financial situation and the terms set by lenders.
Please contact a licensed bank or home loan advisor for personalised assistance.

PPMT1375445