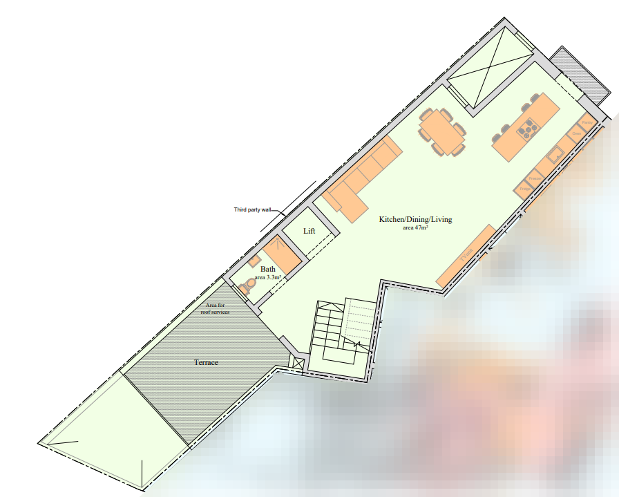
Townhouse located in Birkirkara offers a practical layout with an internally connected 2-car garage, space for a lift, a spacious kitchen/dining/living area, and a backyard. The property also includes 4 bedrooms, 4 bathrooms, balconies, and a terrace making it a comfortable home in a central location.
This townhouse is being offered in shell form and is estimate to be ready by end of 2026.
Disclaimer: The information displayed about this property comprises a property advertisement. PropertyPortfolio.com.mt makes no warranty as to the accuracy or completeness of the advertisement or any linked or associated information. Please verify all details directly with the listing agent.
This calculator is provided for illustration purposes only, and is subject to our Disclaimer Policy.
Eligibility Details
Your Estimate
Figures shown are estimates based on general assumptions and do not represent a loan offer or commitment from any bank.
Actual eligibility, rates, and repayments depend on your individual financial situation and the terms set by lenders.
Please contact a licensed bank or home loan advisor for personalised assistance.





