One-Bedroom Penthouse | On Plan | Għajnsielem
An excellent opportunity to acquire a one-bedroom penthouse still on plan, forming part of a small block of just eight units, set in a tranquil area of Għajnsielem, within walking distance of the charming village square.
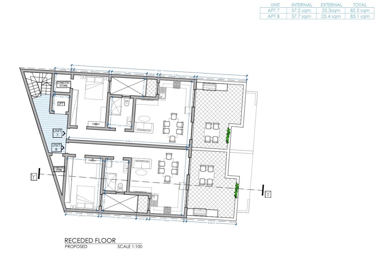
Located on the fourth floor, this penthouse will be offered in shell form, giving buyers the freedom to finish to their own style. The layout comprises an open-plan kitchen/living/dining area, one bedroom, one bathroom, a domestic store, and a large front terrace, ideal for outdoor dining and entertaining.
✔ Fourth floor
✔ Block of 8 units
✔ Lift & common parts at €5,000
✔ Quiet yet central location close to all amenities
Perfect as a rental investment, first-time purchase, or a cozy Gozo retreat.
Disclaimer: The information displayed about this property comprises a property advertisement. PropertyPortfolio.com.mt makes no warranty as to the accuracy or completeness of the advertisement or any linked or associated information. Please verify all details directly with the listing agent.

PPMT1377109