On Plan Fgura 2-bedroom apartment shell.
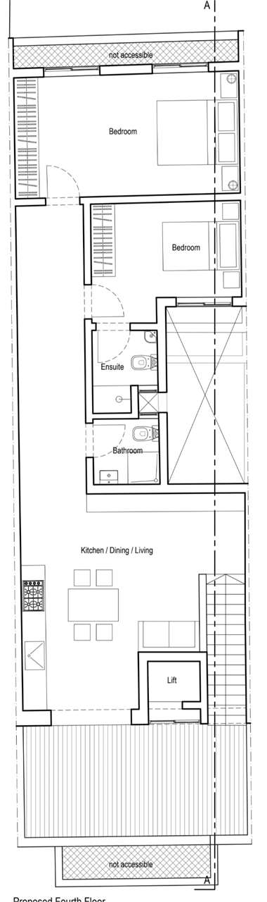
In Fgura comes a third-floor 2-bedroom apartment served with a lift, currently on plan, estimated to be completed by 2027.
The apartment features an open-plan living and dining area opening onto a balcony, along with two bedrooms, a master and a spare with an ensuite, and an additional main bathroom.
Finishings comes at an extra 25K
Disclaimer: The information displayed about this property comprises a property advertisement. PropertyPortfolio.com.mt makes no warranty as to the accuracy or completeness of the advertisement or any linked or associated information. Please verify all details directly with the listing agent.

PPMT1377137