Located in Imqabba, third floor three-bedroom finished apartment currently available on plan.
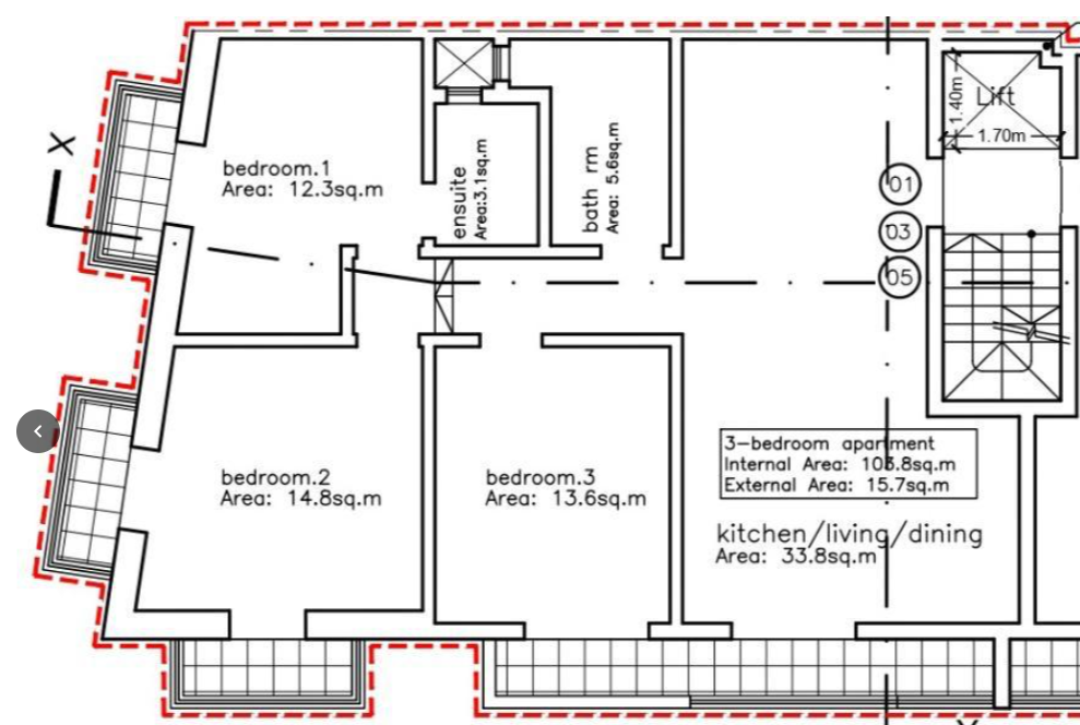
The layout comprises of an open plan kitchen/dining/living with a side terrace, main bathroom and three double bedrooms. The master bedroom includes an ensuite bathroom.
This apartment is being finished excluding bathrooms and internal doors and is estimate to be completed by March 2027.
Disclaimer: The information displayed about this property comprises a property advertisement. PropertyPortfolio.com.mt makes no warranty as to the accuracy or completeness of the advertisement or any linked or associated information. Please verify all details directly with the listing agent.

PPMT1377213