New project which is being sold on plan.
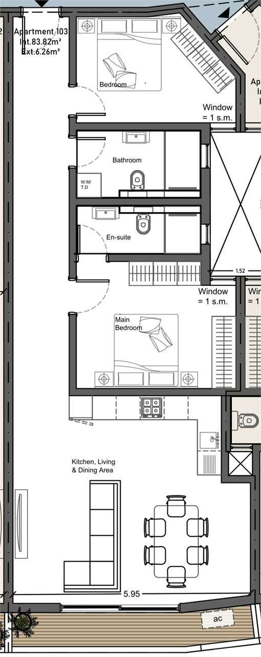
This Apartment is situated on the 1st floor and consist of 2 double bedrooms, an en-suite, main bathroom and an open-plan kitchen/living/dining at the back of the property followed by a good sized front terrace.
Being sold in Shell form by mid 2027.
Price reduction to Sensara Malta client.
Disclaimer: The information displayed about this property comprises a property advertisement. PropertyPortfolio.com.mt makes no warranty as to the accuracy or completeness of the advertisement or any linked or associated information. Please verify all details directly with the listing agent.
This calculator is provided for illustration purposes only, and is subject to our Disclaimer Policy.
Eligibility Details
Your Estimate
Figures shown are estimates based on general assumptions and do not represent a loan offer or commitment from any bank.
Actual eligibility, rates, and repayments depend on your individual financial situation and the terms set by lenders.
Please contact a licensed bank or home loan advisor for personalised assistance.

PPMT1377273