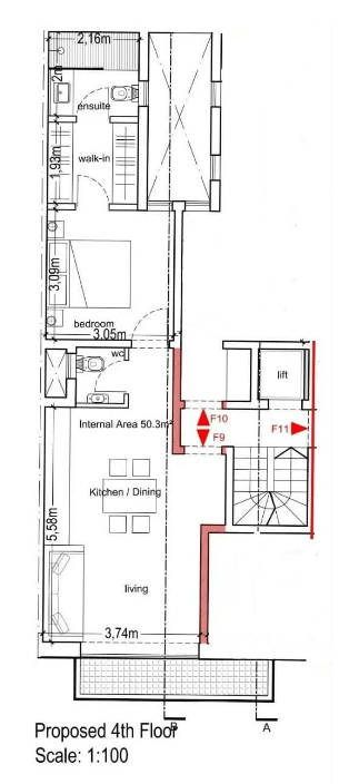
Located on the third floor in San Gwann, one-bedroom finished apartment, currently available on plan.
The layout comprises of an open plan kitchen/dining/living with a front balcony, main bathroom and a double bedroom which is complimented by an ensuite bathroom, a walk-in-wardrobe and a balcony.
This property is served with a lift and Freehold.
It is being offered finished (excluding bathrooms and internal doors) and is estimate to be completed by the end of 2027.
Disclaimer: The information displayed about this property comprises a property advertisement. PropertyPortfolio.com.mt makes no warranty as to the accuracy or completeness of the advertisement or any linked or associated information. Please verify all details directly with the listing agent.
This calculator is provided for illustration purposes only, and is subject to our Disclaimer Policy.
Eligibility Details
Your Estimate
Figures shown are estimates based on general assumptions and do not represent a loan offer or commitment from any bank.
Actual eligibility, rates, and repayments depend on your individual financial situation and the terms set by lenders.
Please contact a licensed bank or home loan advisor for personalised assistance.





