Located on the sixth floor, three-bedroom finished sixth floor Penthouse located in St Paul’s Bay.
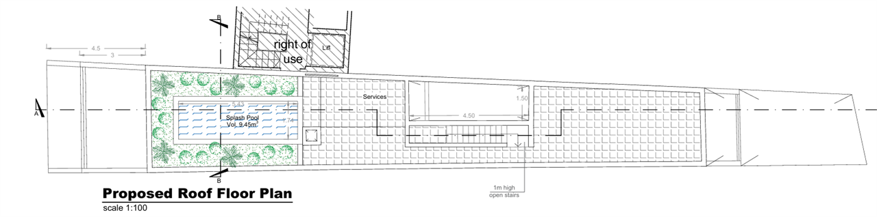
The layout comprises of an open plan kitchen/dining/living with a front terrace, main bathroom, three-bedrooms (two double bedrooms and a spare). The master bedroom includes a balcony. This penthouse is complimented by it’s own full roof and airspace which includes a pool.
This property is ready built and is being offered finished excluding bathrooms and internal doors.
Disclaimer: The information displayed about this property comprises a property advertisement. PropertyPortfolio.com.mt makes no warranty as to the accuracy or completeness of the advertisement or any linked or associated information. Please verify all details directly with the listing agent.
This calculator is provided for illustration purposes only, and is subject to our Disclaimer Policy.
Eligibility Details
Your Estimate
Figures shown are estimates based on general assumptions and do not represent a loan offer or commitment from any bank.
Actual eligibility, rates, and repayments depend on your individual financial situation and the terms set by lenders.
Please contact a licensed bank or home loan advisor for personalised assistance.





