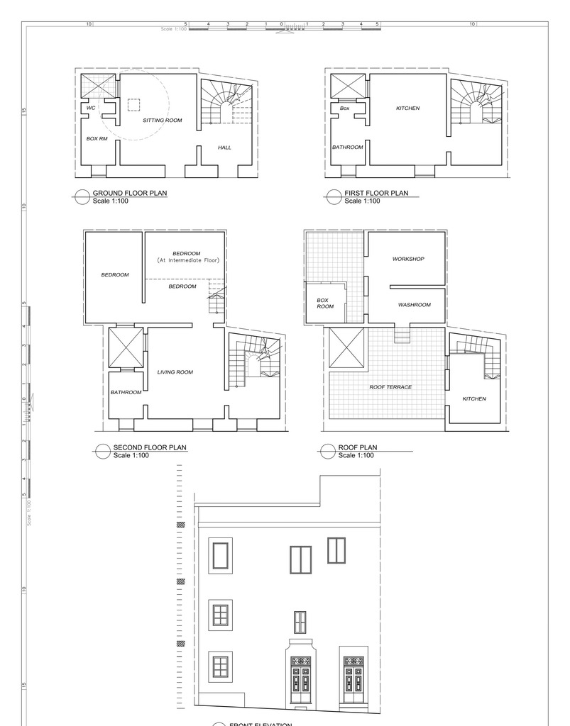
BIRGU – A charming 2-floor townhouse set in the historic heart of Birgu is now available for sale, offering generous living space and traditional character throughout. This well-kept property comprises an entrance hall, a box room and a guest toilet at ground-floor level; a kitchen and a bathroom at first-floor level; 2 bedrooms, 1 bathroom and a comfortable living room at second-floor level; a spacious terrace ideal for entertaining, a box room, an additional kitchen, a workshop and a washroom at roof level, making this home both practical and versatile. This unique property is full of potential and ideal for families or investors seeking a beautiful home in one of Malta’s most sought-after historic locations.
Disclaimer: The information displayed about this property comprises a property advertisement. PropertyPortfolio.com.mt makes no warranty as to the accuracy or completeness of the advertisement or any linked or associated information. Please verify all details directly with the listing agent.
This calculator is provided for illustration purposes only, and is subject to our Disclaimer Policy.
Eligibility Details
Your Estimate
Figures shown are estimates based on general assumptions and do not represent a loan offer or commitment from any bank.
Actual eligibility, rates, and repayments depend on your individual financial situation and the terms set by lenders.
Please contact a licensed bank or home loan advisor for personalised assistance.


















