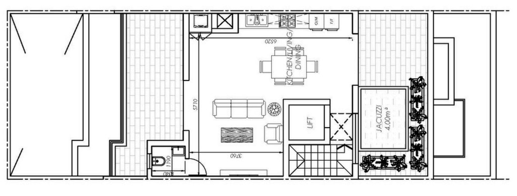
TA’ XBIEX – A modern 3-bedroom duplex penthouse located in the highly sought-after coastal town of Ta’ Xbiex is now available for sale, with an estimated completion date set for December 2026. This well-planned 170 sqm freehold property is being sold fully finished, excluding bathrooms and internal doors, and comprises a spacious open plan kitchen/living/dining area, 3 bedrooms (master with en suite), main bathroom, a washroom, a front terrace and a back terrace complete with a jacuzzi, perfect for relaxing and entertaining. This well-located penthouse with generous outdoor space is an ideal home for a couple or a family looking for a stylish property in a central and desirable area.
Disclaimer: The information displayed about this property comprises a property advertisement. PropertyPortfolio.com.mt makes no warranty as to the accuracy or completeness of the advertisement or any linked or associated information. Please verify all details directly with the listing agent.
