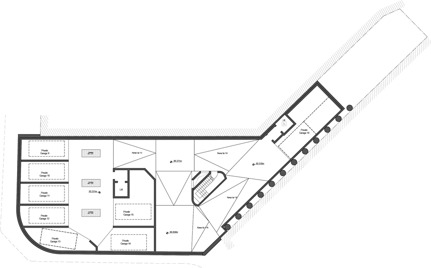
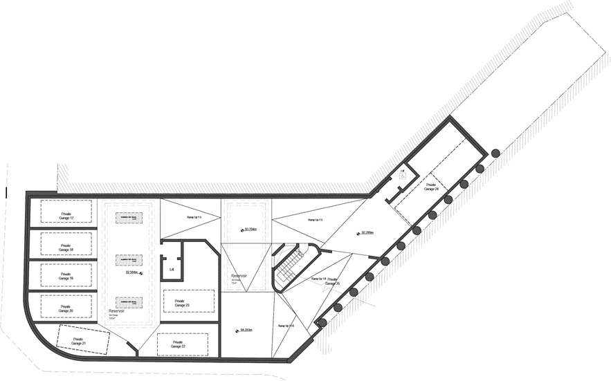
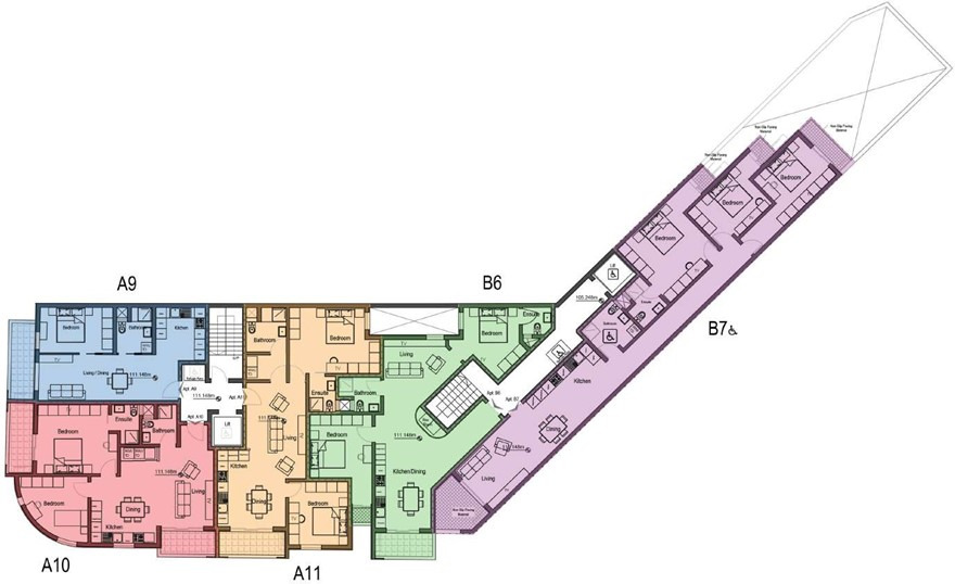
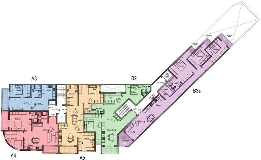
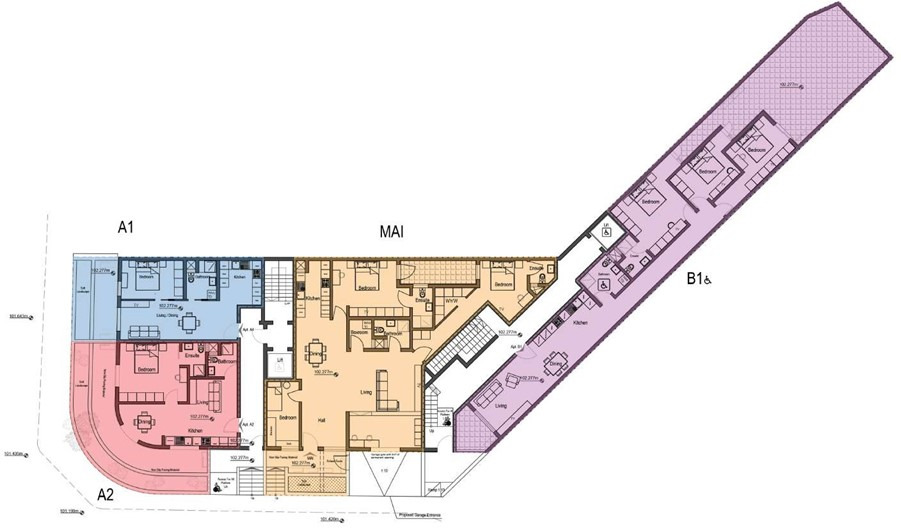
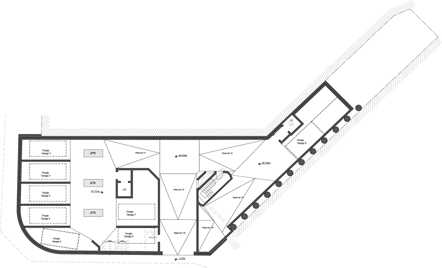
ST PAULS BAY – A fantastic opportunity! Choose from a selection of modern 1-, 2- and 3-bedroom apartments as well as a ground floor maisonette within a brand-new residential project in the sought-after coastal town of St. Pauls Bay, scheduled for completion in December 2027. These well-planned properties are being offered in shell form and comprise a bright open kitchen/living/dining area, bedrooms, bathrooms, and private outdoor space including an internal yard, back terrace or roof terrace depending on the unit. Optional garages available starting from €43,500, providing additional convenience. This exciting new development is an excellent investment opportunity and an ideal future home for buyers seeking a modern property in a well-connected coastal location. A6 – 1-bedroom- 58,72 sqm, €237,000, B3 – 3-bedroom- 134,35 sqm, €302,000, B15 -Ground floor maisonette 134,11 sqm, €352,000. More units available.
Disclaimer: The information displayed about this property comprises a property advertisement. PropertyPortfolio.com.mt makes no warranty as to the accuracy or completeness of the advertisement or any linked or associated information. Please verify all details directly with the listing agent.

