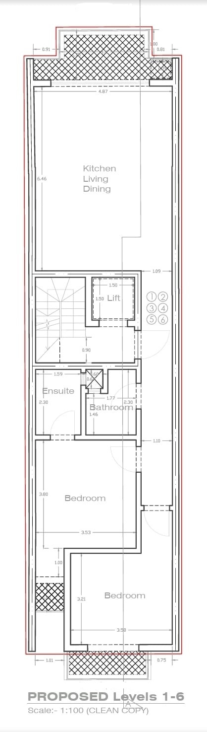
ST JULIANS – Set on the 6 th floor of the highly sought-after area of Spinola Bay, an 88.5 sqm 2-bedroom apartment, offering a fantastic opportunity to acquire a property in advanced shell form within a prime location, is on the market for sale. This well-planned property comprises an open kitchen/living/dining area, 2 bedrooms (master with en suite), main bathroom, and 2 balconies, all served with lift access. An excellent investment opportunity and an ideal home for buyers looking to finish a property to their own taste in one of Malta’s most desirable seaside locations.
Disclaimer: The information displayed about this property comprises a property advertisement. PropertyPortfolio.com.mt makes no warranty as to the accuracy or completeness of the advertisement or any linked or associated information. Please verify all details directly with the listing agent.

PPMT1381076