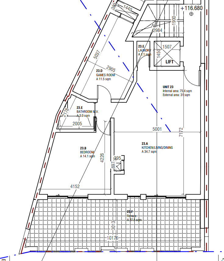
Located in Msida, fifth floor, fully finished one-bedroom apartment, currently available on plan.
The layout consists of an open plan kitchen/dining/living with a front balcony, main bathroom, a laundry room and a double bedroom.
This property is being offered fully finished including bathroom and internal doors and is estimate to be completed by 2027. An optional street level one car garage is available at an extra price of 75k.
Disclaimer: The information displayed about this property comprises a property advertisement. PropertyPortfolio.com.mt makes no warranty as to the accuracy or completeness of the advertisement or any linked or associated information. Please verify all details directly with the listing agent.

PPMT1381197