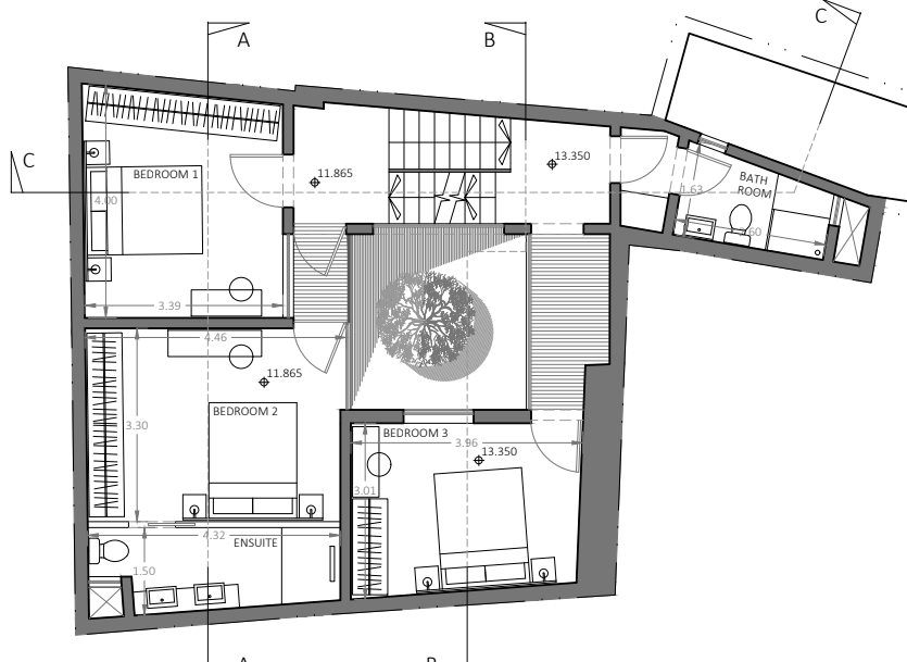
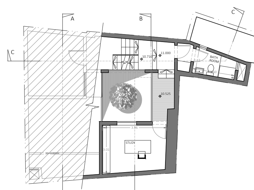
Located in Zejtun, to be converted in a four-bedroom House of character, now available on the market.
This property consists of an open plan kitchen/dining/living at the ground floor level, main bathroom and four bedrooms (3 double bedrooms and a spare). This property benefits from exclusive use of its own roof and airspace with space for a private pool.
The property is being offered unconverted, but once finished, it will make a lovely home.
Disclaimer: The information displayed about this property comprises a property advertisement. PropertyPortfolio.com.mt makes no warranty as to the accuracy or completeness of the advertisement or any linked or associated information. Please verify all details directly with the listing agent.

PPMT1381515