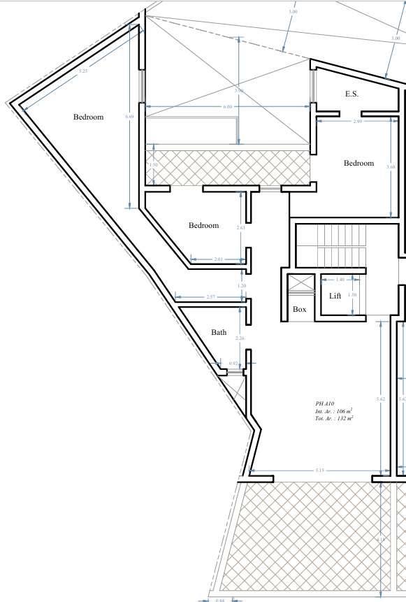
Situated in Birzebbuga, two-bedroom finished penthouse, currently available on plan.
The layout comprises of an open plan kitchen/dining/living with a front terrace, main bathroom, box room and two-double bedrooms. The master bedroom includes an ensuite bathroom.
This property is being offered finished excluding bathrooms and internal doors and is estimate to be finished by 2027. Optional garages are available at an extra price of 62k.
Disclaimer: The information displayed about this property comprises a property advertisement. PropertyPortfolio.com.mt makes no warranty as to the accuracy or completeness of the advertisement or any linked or associated information. Please verify all details directly with the listing agent.
This calculator is provided for illustration purposes only, and is subject to our Disclaimer Policy.
Eligibility Details
Your Estimate
Figures shown are estimates based on general assumptions and do not represent a loan offer or commitment from any bank.
Actual eligibility, rates, and repayments depend on your individual financial situation and the terms set by lenders.
Please contact a licensed bank or home loan advisor for personalised assistance.

PPMT1381653