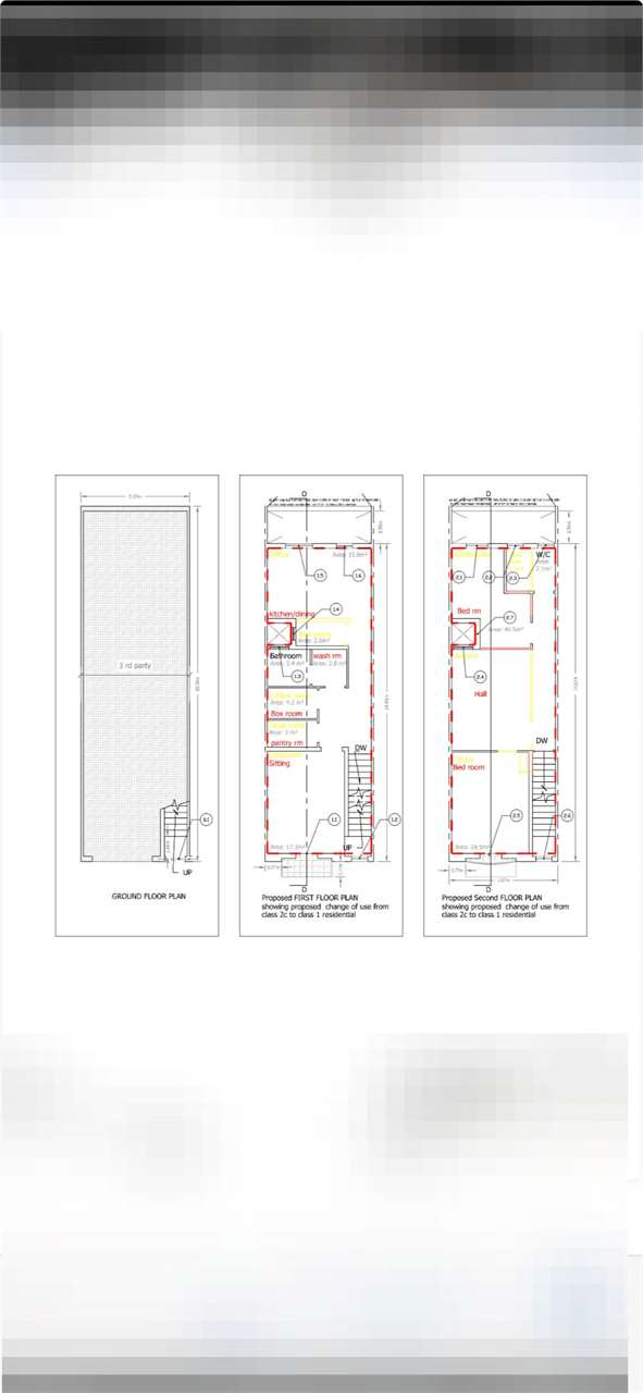
First-floor duplex maisonette located in the sought-after area of Qormi, offering comfortable living spaces spread over two levels. The property comprises 2 to 3 bedrooms, 2 bathrooms, a spacious sitting room, pantry, and a practical boxroom, kitchen, dining
This home is further enhanced by its own airspace, providing an excellent opportunity to develop an additional floor, making it ideal for future expansion or investment potential.
Perfectly suited as a family home, rental investment, or even as office space, thanks to its flexible layout and central location. Freehold
Disclaimer: The information displayed about this property comprises a property advertisement. PropertyPortfolio.com.mt makes no warranty as to the accuracy or completeness of the advertisement or any linked or associated information. Please verify all details directly with the listing agent.
This calculator is provided for illustration purposes only, and is subject to our Disclaimer Policy.
Eligibility Details
Your Estimate
Figures shown are estimates based on general assumptions and do not represent a loan offer or commitment from any bank.
Actual eligibility, rates, and repayments depend on your individual financial situation and the terms set by lenders.
Please contact a licensed bank or home loan advisor for personalised assistance.

PPMT1381717