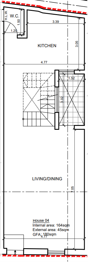
Located in Zebbug in a UCA area, three-bedroom Townhouse, currently available on plan.
This Townhouse consists of a two car garage at a basement level, kitchen/dining/living and a bathroom at ground floor level, a bathroom and three double bedrooms on the first floor level. The master bedroom includes an ensuite bathroom.
One of the main highlights of this townhouse is the large roof level, which includes a spacious washroom and access to the roof and full airspace with space for a pool.
This property is being offered in shell form and is estimate to be completed by 2027.
Disclaimer: The information displayed about this property comprises a property advertisement. PropertyPortfolio.com.mt makes no warranty as to the accuracy or completeness of the advertisement or any linked or associated information. Please verify all details directly with the listing agent.
This calculator is provided for illustration purposes only, and is subject to our Disclaimer Policy.
Eligibility Details
Your Estimate
Figures shown are estimates based on general assumptions and do not represent a loan offer or commitment from any bank.
Actual eligibility, rates, and repayments depend on your individual financial situation and the terms set by lenders.
Please contact a licensed bank or home loan advisor for personalised assistance.

PPMT1381783