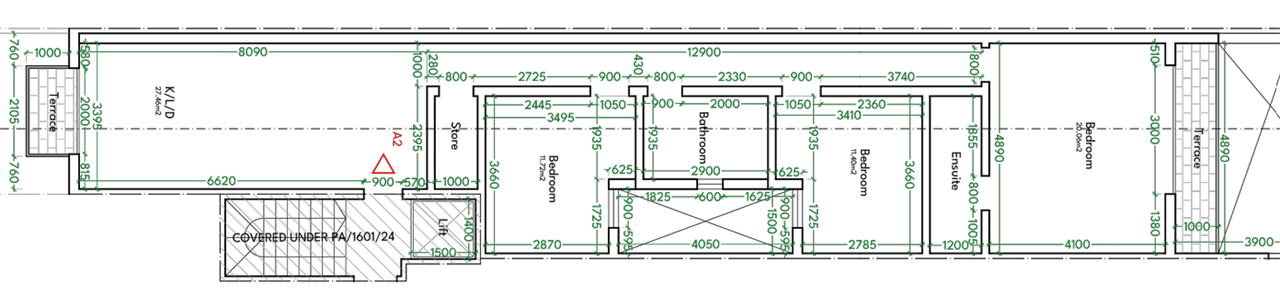
Currently on plan , comes this ground floor 2 bedroom maisonette which is being offered finished excluding bathrooms and internal doors and it is scheduled to be fully completed by August 2027 .
The layout comprises of a front open plan served with internal yard , store room , 2 double bedrooms of which main is being served with ensuit with back yard and master bathroom.
Freehold.
Disclaimer: The information displayed about this property comprises a property advertisement. PropertyPortfolio.com.mt makes no warranty as to the accuracy or completeness of the advertisement or any linked or associated information. Please verify all details directly with the listing agent.
This calculator is provided for illustration purposes only, and is subject to our Disclaimer Policy.
Eligibility Details
Your Estimate
Figures shown are estimates based on general assumptions and do not represent a loan offer or commitment from any bank.
Actual eligibility, rates, and repayments depend on your individual financial situation and the terms set by lenders.
Please contact a licensed bank or home loan advisor for personalised assistance.

PPMT1381811