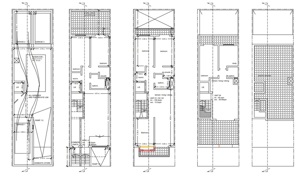
MOSTA – A fantastic opportunity has arisen to choose from a selection of brand new 3-bedroom apartments available for sale in a sought-after residential area of Mosta. Each measuring a total area of 115 sqm and scheduled for completion by December 2026, these well-planned units comprise an open plan kitchen/living/dining area, 3 bedrooms (master with en suite), main bathroom, and a front terrace providing outdoor space for relaxation. To be sold finished including bathrooms, internal doors, soffits and air-conditioning, making it ready for immediate furnishing. Optional garages are also available at an additional cost. A perfect modern home and a great investment opportunity. Ideal for couples or families looking for comfort and convenience.
Disclaimer: The information displayed about this property comprises a property advertisement. PropertyPortfolio.com.mt makes no warranty as to the accuracy or completeness of the advertisement or any linked or associated information. Please verify all details directly with the listing agent.
This calculator is provided for illustration purposes only, and is subject to our Disclaimer Policy.
Eligibility Details
Your Estimate
Figures shown are estimates based on general assumptions and do not represent a loan offer or commitment from any bank.
Actual eligibility, rates, and repayments depend on your individual financial situation and the terms set by lenders.
Please contact a licensed bank or home loan advisor for personalised assistance.

PPMT1381885