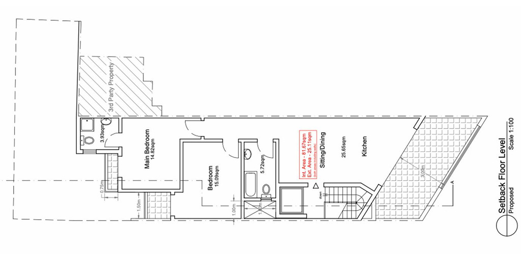
MSIDA – A beautifully finished and fully furnished 106.78 sqm penthouse offering modern comfort and exceptional outdoor living in the central and highly sought-after town of Msida is now available for sale. This well-presented freehold property comprises a bright open plan kitchen/living/dining area leading out onto a generous private terrace ideal for both everyday living and entertaining, 2 bedrooms (master with en suite), and main bathroom, all designed to maximise comfort and functionality while enjoying a contemporary lifestyle. To be sold fully built, finished and furnished, making it ready to move into immediately. This stylish, well-located home with a spacious terrace is an ideal residence for a couple, young professionals, or for investors looking for a rental investment opportunity.
Disclaimer: The information displayed about this property comprises a property advertisement. PropertyPortfolio.com.mt makes no warranty as to the accuracy or completeness of the advertisement or any linked or associated information. Please verify all details directly with the listing agent.
This calculator is provided for illustration purposes only, and is subject to our Disclaimer Policy.
Eligibility Details
Your Estimate
Figures shown are estimates based on general assumptions and do not represent a loan offer or commitment from any bank.
Actual eligibility, rates, and repayments depend on your individual financial situation and the terms set by lenders.
Please contact a licensed bank or home loan advisor for personalised assistance.

PPMT1381949