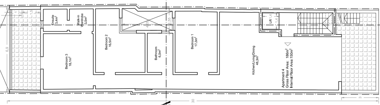
Currently under construction comes this larger then usual 3 bedroom penthouse which owns a circa 160 sqm gross area in a block of only 4 units .
The property is being offered highly finished excluding bathrooms and internal doors , optional garage and with its full roof and airspace.
It layout comprises of a front 30 sqm open plan with a box / utility room and overlooking a front terrace , 3 double bedroom , a bock terrace , box room ( can be converted in to ensuit , and master bathroom .
A staircase from the front terrace leads to its private roof which will be served with a space pool.
Freehold.
Disclaimer: The information displayed about this property comprises a property advertisement. PropertyPortfolio.com.mt makes no warranty as to the accuracy or completeness of the advertisement or any linked or associated information. Please verify all details directly with the listing agent.
This calculator is provided for illustration purposes only, and is subject to our Disclaimer Policy.
Eligibility Details
Your Estimate
Figures shown are estimates based on general assumptions and do not represent a loan offer or commitment from any bank.
Actual eligibility, rates, and repayments depend on your individual financial situation and the terms set by lenders.
Please contact a licensed bank or home loan advisor for personalised assistance.

PPMT1382025