Give us Feedback

2 Bedroom House of Character For Sale In Siggiewi (PPMT1382027)

Save
PPMT1382027 Property Photo Property Photo Property Photo Property Photo See More Photos
Property Information
Property Type: House of Character
Property ID: PPMT1382027
Location: Siggiewi
Bedroom/s: 2
Shower/s: 3
Price €906,000
Book a Viewing
Property Description

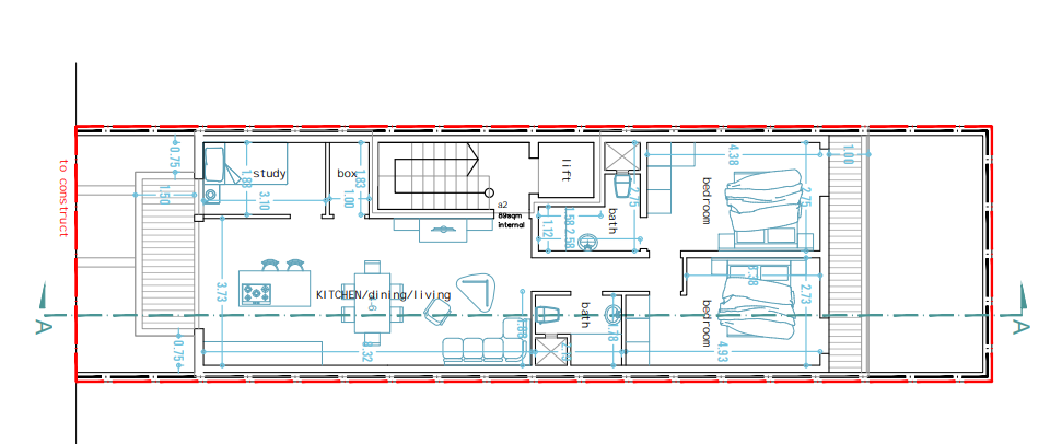
Located in a quiet area of Siggiewi, this unique partly converted house of character offers a rare blend of traditional features.

Consisting of two dwellings connected by an interconnecting courtyard with washroom and also includes an interconnecting one-car garage.

The first dwelling welcomes you with a spacious kitchen/dining and a separate living room and a guest toilet at ground level. Upstairs, you’ll find a generous double bedroom complete with a large en-suite and access to a private terrace, as well as a roof terrace ideal for outdoor relaxation. An additional large room, currently used as a dressing room, can easily be converted into a second bedroom.

The second dwelling offers further accommodation, starting with a comfortable double bedroom with en-suite on the lower level. A spiral staircase leads to an upper living area with a balcony, which could alternatively serve as a fourth bedroom.

Overall, the property offers the potential for up to four bedrooms, three bathrooms making it ideal as a family home, rental investment, or a combination of both.

Disclaimer: The information displayed about this property comprises a property advertisement. PropertyPortfolio.com.mt makes no warranty as to the accuracy or completeness of the advertisement or any linked or associated information. Please verify all details directly with the listing agent.

Similar Properties
Loan Calculator

This calculator is provided for illustration purposes only, and is subject to our Disclaimer Policy.

Eligibility Details

Calculate

Your Estimate

Loan Amount
€0.00
Minimum Deposit (10%)
€0.00
Monthly Payment
€0.00
Duration
0 Years
Home Price
€0.00
Search Properties

Figures shown are estimates based on general assumptions and do not represent a loan offer or commitment from any bank.
Actual eligibility, rates, and repayments depend on your individual financial situation and the terms set by lenders.

Please contact a licensed bank or home loan advisor for personalised assistance.

Property Portfolio is a real estate marketing and lead generation platform - not a real estate agency. We help agencies and agents grow their business by increasing visibility and generating quality leads. Listings on our platform are search engine optimised, promoted across multiple channels, and presented professionally to attract more interest. Partner with us to strengthen your digital presence and reach more potential clients.

© 2026 Copyright - Property Portfolio Back To Top