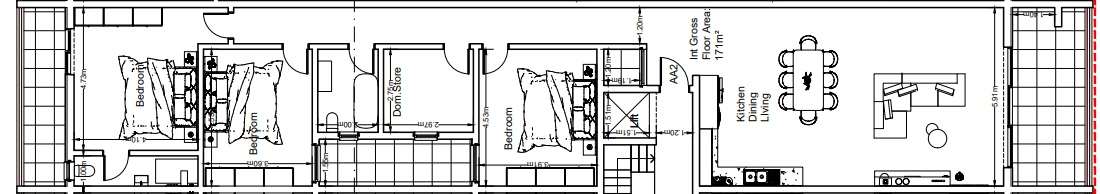
Located in Pieta, three-bedroom first floor apartment with unobstructed views, currently available on plan.
The layout comprises of an open plan kitchen/dining/living leading to a front balcony, main bathroom, a laundry room and three double bedrooms. The mater bedroom is connected to a balcony and includes an ensuite bathroom.
This property is being offered fully finished including bathrooms and internal doors and is estimate to be completed by 2028. Optional parking spaces are available at an extra price starting from 97k.
Disclaimer: The information displayed about this property comprises a property advertisement. PropertyPortfolio.com.mt makes no warranty as to the accuracy or completeness of the advertisement or any linked or associated information. Please verify all details directly with the listing agent.
This calculator is provided for illustration purposes only, and is subject to our Disclaimer Policy.
Eligibility Details
Your Estimate
Figures shown are estimates based on general assumptions and do not represent a loan offer or commitment from any bank.
Actual eligibility, rates, and repayments depend on your individual financial situation and the terms set by lenders.
Please contact a licensed bank or home loan advisor for personalised assistance.

PPMT1382230